
濟南歷下區作為城市文化、醫療與教育資源的聚集地,具備發展高端康養項目的天然優勢,解決長者從“健康活力養老”到“專業康復護理”的全周期健康養老需求。
項目選址距趵突泉景區僅13分鐘車程,7公里范圍內覆蓋山東6所三甲醫院,形成“15分鐘醫療急救圈”。這一區位選擇打破了傳統養老項目“遠離城市”的慣性思維,通過“城市融入”策略,讓長者既能享受便捷服務,又能保持社會連接。

槿椿里的新·生·活
回溯時光,享受當下
一碗湯的距離
城市和時間的快節奏猶如河流,
總是消逝的很快將川流不息的時間長河引入歲月里,
讓激流蔓延,讓時光不老,讓人生無限。

養老社區是生活方式的創造,江河設計JHD希望更多地滿足老年人生理、心理、社會的需求,為居住在這里的老人創造一個“新生活”——打造一個兼具“互動、活力、自由、有趣、多維度體現自身價值感”的體驗式空間,從而催生項目成為令每位老人心之向往的晚年生活基地。

槿椿·時光
代表這是一種最棒的生活方式,
更樂觀的生活態度,
更高階平和的生活方式,
更志同道合的社群。

對于當下浮躁的社會涌流,精神療愈的作用相當重要。在使康養空間從簡單的療養功能空間進而進化為重視康復康養并幫助回歸社會的發展空間,要讓人在康養空間當中保持身心靈的平衡。空間環境品質與療愈理念設計密不可分,康養空間設計中要保證自然元素、實際環境元素,社會環境元素與象征環境元素循環互補,實現身體、心靈、感情和精神的痊愈。

從生理特性來說,設計適老化設施時一方面考慮由于介助、介護老人的身體障礙而產生的特殊要求;另一方面也應基于人體工程學尺度方面的考慮,滿足老年人全生命周期的一般化設計。
從心理特征來說,設計時一方面根據調研觀察老年人所需所求,針對性設計迎合老年人心理需要;另外一方面利用空間營造,增加行為與空間交互作用,利用空間設計的關聯性與感染性,引導老年人間接參與活力生活。

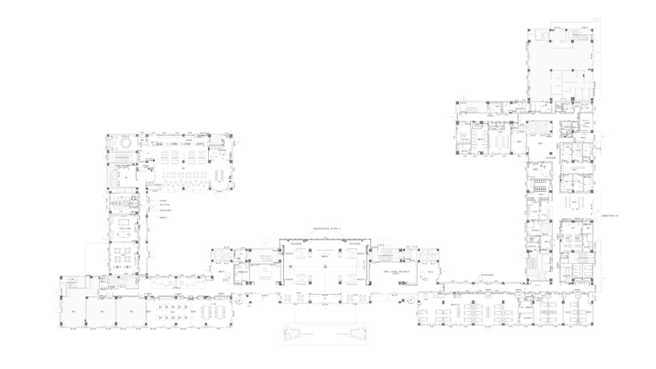
老有所醫:項目在南區中心主樓的西側 D-1首層設置康復門診,面積約為2160㎡,D-1 2~4 層為康復病房,面積約6480㎡。在北區 A-3棟首層設置社區門診,面積約為1982 ㎡。
老有所養:D-1 2~4層為康復病房可兼服務失智老人,北區 A-1為介助老年公寓,其余為活力老年公寓,服務于可獨立活動的老年人。
老有所學:南區和北區分別選取 A-2 和 B-2 首層作為老年大學,設置健身、棋牌、繪畫、手工、圖書館等設施,滿足老人的心理和精神需求。
老有所為:利用入口廣場、建筑之間的中庭、下沉廣場、屋頂花園、陽臺等為老年人提供安全享受自然的空間。減輕醫護人員的照護強度的同時,滿足老年人社交、散步、種花種菜等各種需求。



入戶大堂是整體空間的引領者,新中式設計風格,吊頂造型詮釋了主體元素“濟南之山”的形式。打破常規大堂設計手法,本案營造了酒店會所的氛圍,典雅而高貴,獨特的養老大廳,園中園設計的融入,進一步刻畫了中式風格。

餐廳設計延升并延續了“山”元素的新中式風格手法,普華而厚重,作為入住后使用率較高的空間,其舒適和便利的程度直接影響老年人的居住體驗。餐廳不僅是為老年人提供日常餐飲的地方,同時在非就餐期間,可對其空間進行復合化設計,滿足交流、閱讀、舉辦各種活動等,提高空間利用率。


設計原則:空間劃分形式多變,考慮不同老年人心理狀態與用餐氛圍傾向性,可設置開放、半開放、私密不同屬性用餐環境,滿足其差異化需求。餐桌椅家具布局靈活,可以自由組合移動。使其在用餐后轉變為活動空間,變更空間使用屬性,促進空間使用的延續性。
由于老年人身體狀況不同,需要借助不同的行動輔具。在無障礙設計、空間尺度、桌椅尺寸等方面,考慮不同屬性人群的行動空間。縮短服務流線,便于為介助和介護老人提供送餐服務。

作為公共活動空間中具備較高人氣和文化凝聚力的空間,包括老年大學、閱覽室、書畫室、教室、棋牌室、多功能廳等。依據老年人活動特征,可分為靜態和動態兩種空間屬性。

接待、洽談緊鄰入口大廳、以茶室的功能形式接待老人及家庭成員,前期作為洽談區,運營后,可作為老年人品茶、論茶的活動室。
以老年大學為核心的靜態學習空間,主要針對自理老人開設書法課、手工課、電腦課等,在培養個人興趣時獲得成就感。同時吸引介護老人的加入,將技能教育課堂與康復訓練結合,進行康復教學、技能訓練,提升老年人使用相應輔具的能力,喚回老年人的個性活力。


設計原則:在靜態學習空間,室外空間室內化,營造良好的自然采光、通風和安靜的環境。
在動態休閑空間,因打牌下棋時常會伴隨嘈雜的聲音,一般常與室外活動場地相結合。考慮打牌時存在參與者、圍觀者、護理者等多種類型人群,可將棋牌桌椅四周過道加寬,預留輪椅回轉的空間。在公共區域設置理發區,方便老人的理發、美發等功能,功能全面化。布局中注意動靜分區,空間尺度能靈活分隔與組合。依據功能屬性相似性臨近原則,必要時可利用部分共享空間結合布置。

走廊地面鋪設800mm×800mm的防滑地磚,為坐輪椅的老人提供方便。過道兩側距離地面900mm的墻壁上設置扶手,墻面設置一些裝飾畫和注意須知,科普一些必要知識。吊頂下吊200mm,使得視覺上走廊空間擴大,減輕壓抑感。另外,安裝智能化老年公寓環境監測系統,及時感知養老中心環境溫濕度變化,防止意外。

設計原則:考慮老年人身體狀況和交往需求,以及“隨地性”和“隨時性”的行為習慣,可將走廊復合化設計。
在行走路線較長的走廊,為老年人提供休憩設施,提高老年人的使用舒適度,同時便于與相識老人坐下短暫攀談。結合轉角的開放活動空間,創造半私密空間,通過點和線的結合形式,使其形成小組團的交流社交。

作為滿足多樣化身體機能訓練的公共空間,包括健身中心、舞蹈室、乒乓球室等。為自理老人提供健身場所和運動設施,引導老年人走出居室,參加活力運動。常為單一性獨立功能空間,形成封閉活動空間。其一在于保證空間使用的安全和隱私性,其二在于降低對其他空間的影響。

針對醫養結合型設施的醫療部分,最特色的一個部分不是診療而是護理。一些護理空間的起源其實就是原本在整個居住單元體系里面,一些經常被頻繁使用的房間變成了公共空間:診斷室、患者(長者)浴室、公共休息室、儲存空間等。通過長時間的演化,現在的護理空間包括老人區域、治療輔助區域、生活輔助區域和交通區域組成。

多功能廳延續了“山”的設計元素,“山”型的吊頂設計,最大化利用結構關系,多種氛圍的燈光設計,滿足不同場景的使用。打造通高空間,光線引入中庭,營造老年人參與的活力度, 滿足老年人心理和感官的需求。

電梯廳一般位置流線便捷,人口密度相對較大區域,因此在電梯廳側邊設置休息座椅。設計結合轉角的開放活動空間,創造半私密空間,通過點和線的結合形式,使其形成小組團的交流社交。

地下一層客梯廳、方便老人及家屬通過客梯到達一層或居住樓層。對客用電梯設計時應考慮使用對象大多為老年人,兼顧水平和垂直形式和尺寸,進行適老化細部設計。

從平面布局圖上可以看出,居室都以單人間的模式一字排開,在公共走道與建筑體量的轉接處安排了醫療護理區域與公共活動區域。截取居住體量的一段可以發現,走廊的端頭位置都是供居住單元內的老人平日活動的區域。
此區域緊鄰醫療部分,一方面作為護理區的等候區域、另一方面也作為護士站的監護視野區。這是第一個視線通道,來自醫護與居室外部公共活動區域的聯系。

對于居室部分,除了朝向都是整體朝外之外,所有的臥室特征是都配備有“室內玻璃”,這是專門建立的第二個視覺通廊,來自居室內部與居住單元公共空間之間,聯系著建筑內部的“鄉村廣場”。

居室空間內走廊設置為2400mm左右較為合適。入戶門均宜設置為朝內開啟。有助于老年人較為自由地活動交往、書畫展示,促進老年人交流。考慮老年人身體狀況和交往需求,以及“隨地性”和“隨時性”的行為習慣,可將走廊復合化設計,使交通空間和交流休憩空間并存,在行走路線中布置幾個可提供老年人休憩的服務設施,提高老年人使用舒適度。


護理單元根據照護需求的不同,分為標準單元和失智單元兩種。標準單元以收治照護等級三級以上的老年人為主,失智單元以中晚期失智癥老年人為主,在房間組團類型、日常流線、安全防護等方面需進行特殊設計。

標準單元分布在二至六層,每層32床,主要由南向居室、多功能餐廳,北向的護士站、服務用房、交通核組成,根據醫養結合需求。

主要采用以下幾點設計策略:
安全高效“一管多“的流線設計。護士站臨近交通核、辦公區、多功能餐廳,位于整個平面流線中心,護理人員可同時兼顧電梯、護士站、多功能餐廳、走廊的情況,減少老年人發生意外的概率,并大幅縮短護理人員日常照護流線。

“小空間大功能”的服務用房。服務用房位于北側,包括助浴間、洗衣污洗室、無障礙衛生間、布草間、輪椅存放區。公共助浴間由更衣區、無障礙衛生間、淋浴區組成,可滿足浴床進出;利用走道空間,預留輪椅存放、儲物空間,使整個服務空間更便捷實用。

失智單元北樓六樓為失智單元,與標準單元主要有以下幾點不同:
情景式洄游路線。利用走道及多功能餐廳設計可供老年人游走的濟南風情路線,并在路線旁預留休息空間,有助于失智癥老人改善情緒。
隱藏流線,提高安全防護。失智單元內所有對外出入口進行隱藏處理,并配備定位和人臉識別,外窗采用鋼化玻璃,減少老人走失風險。

衛生間首要重視的是安全性,采用防滑地磚,增加地板磚面與人體或鞋底的摩擦,防止人打滑摔倒。地面積水可能會導致打滑,會有潛在風險。
衛生間設計中,馬桶兩側皆設置支撐扶手,方便借力;同時在其中留出足夠的空間,滿足無障礙旋轉半徑;為了避免狹小的空間使人感到壓抑,衛生間墻面貼淺色系墻面磚,給人在心靈上帶來一種放松的感受,在視覺上給人一種空間被放大、通透的感覺。

進行醫療功能設計的時候,為了緩解老年人對醫療空間的抗拒感是設計出入口的重點,安靜愜意,隱蔽舒適是滿足老年人精神需求的。與傳統喧囂商業設計不同,通過外部將內部空間阻隔,通過灰空間進入內區,中庭作為集散場地,再有序分散使用人流,對老年人行為習慣存在適用匹配度。

候診空間在康養空間環境中必不可少,在設計上,候診空間有一級候診和二級候診等空間。 候診空間在整個空間中起到了承上啟下的作用。
首先,因為患者在候診空間需要等待停留,所以候診空間需要設計具備良好的通風采光條件,在設計上把候診空間放在靠外墻或中庭布置,這樣的話,就可以保證至少一些候診空間能有良好的自然采光,讓空氣得以順暢流通。
其次,在個別區域設計一些觀賞元素,提高視覺感受,例如,加入一些小型盆景,藝術作品等,又或者加入一些數碼設備,提高使用者視野。
項目信息
Project Information
設計面積 | 26916㎡
完工時間 | 2025.5
項目地址 | 山東濟南
項目業主 | 濟南歷下控股集團


